Service
About Graspnett

Civil/Structural Engineering

The team of Structural Engineers at Graspnett equipped with cutting-edge technologies of the industry, guarantee quick turn-around-times, top quality and cost-effectiveness, Graspnett functions just like an extension of your team. Graspnett delivers all BIM related services such as 3D Modeling, shop drawings, construction documentation, and quantity survey & estimation. Our steel detailers are well informed in using the software Auto Cad and Revit.
Regardless of whether your task is Industrial, Commercial, Infrastructural or Residential, our well-versed staff will provide complete, accurate and on-time drafting and modeling services. Graspnett is firmly committed to customer satisfaction!
services

What We Offer

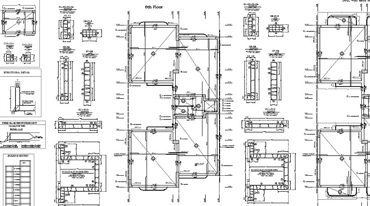
Structural Designing

Structural designing involves creating safe, efficient, and stable frameworks for buildings and structures by analyzing loads and material behavior.

...Read More

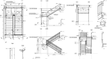
Steel Detailing

Steel detailing involves creating precise drawings and specifications for the fabrication and assembly of steel structures.

...Read More

Shop Drawings

Shop drawings are detailed plans created by contractors or manufacturers that show how specific components will be fabricated, assembled, and installed.

...Read More

3D Modelling

3D modeling involves creating digital representations of objects or structures in three dimensions to visualize, analyze, and simulate designs.

...Read More